Голосование через Email
1
2
3
Ответьте на вопросы для голосования
Минимум 10 символов
Минимум 10 символов

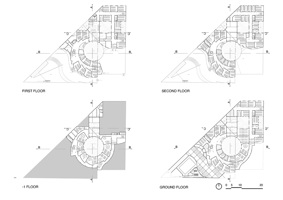
Школа Akhtar (Иран)


Проект:
Школа Akhtar

Номинация: 
Лучший проект общественного здания или сооружения

О проекте:
Проект разработан в соответствии с климатическими особенностями региона и с учетом традиций местного зодчества. Отдельные корпуса для девочек и мальчиков объединены третьим объемом, в котором предусмотрены общие зоны и помещения.

Тщательно проработанные сценарии затенения, обустройство двора между двумя высокими зданиями и использование сырцового кирпича обеспечат температурный комфорт на территории школы даже в самую жаркую погоду.

Местоположение:
Иран, Йезд

Год создания проекта:
2021

Заявитель:
Сассан Сейедкаляль, архитектор, преподаватель

Авторы проекта:
Сассан Сейедкаляль, Рузбех Гаффар Хашеми

Статус проекта:
Проект