Номинация: Лучший студенческий проект здания или сооружения
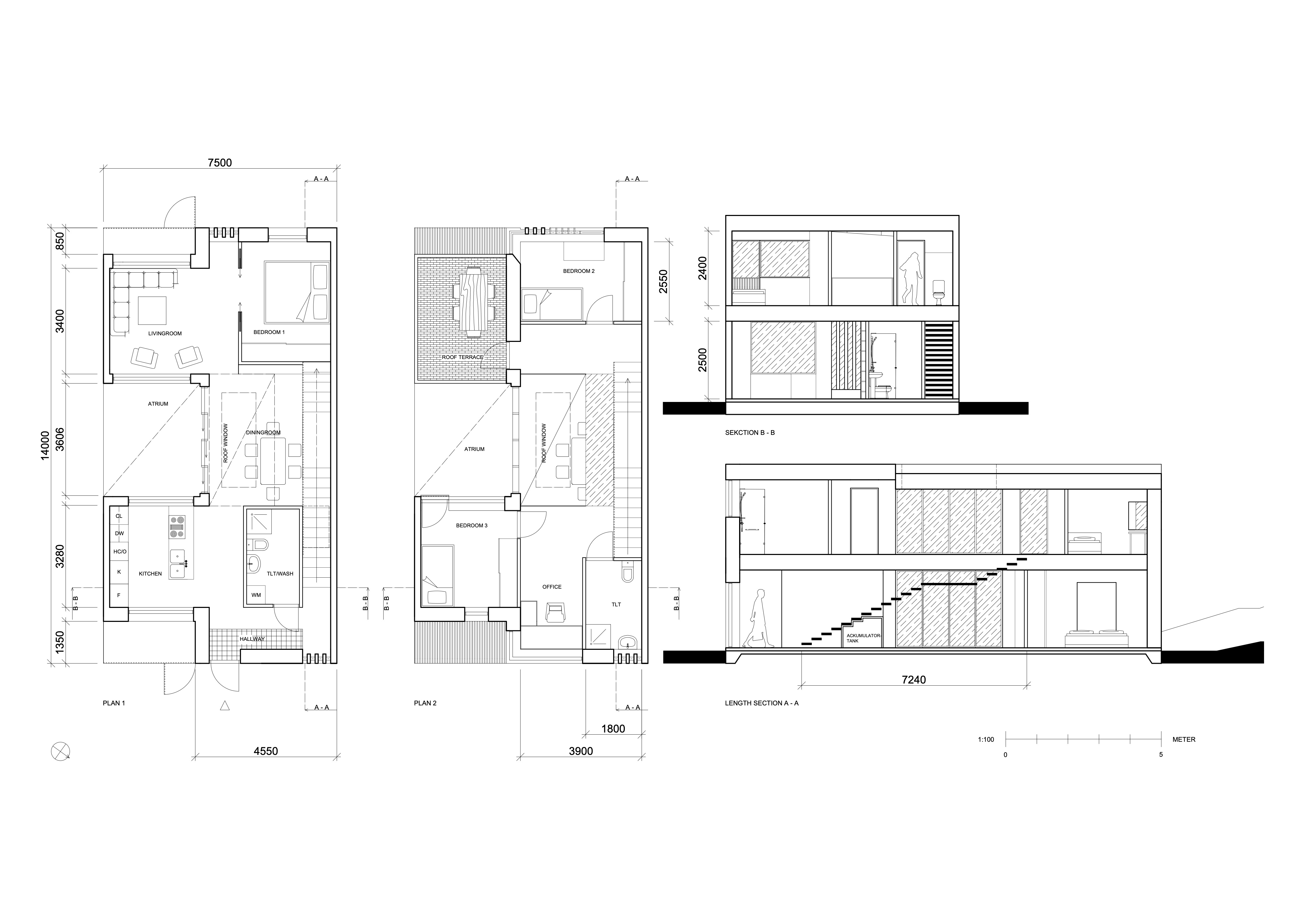
Опроекте: Автору всегда нравилась идея закрытых внутренних двориков, и в этом проекте он в полной мере реализовал ее. Во двор из дома можно выйти через кухню или гостиную. Большие окна в помещениях связывают внутренние и внешние пространства дома. Кухня, атриум и гостиная отделены от остальных помещений раздвижными французскими окнами. По центральной оси дома проходит коридор.
В одной из спален проектируется балкон с выходом в атриум/на террасу. Уклон кровли обеспечивает максимум возможного освещения на эксплуатируемой крыше-террасе, а деревянная решетка на фасаде создаст у жителей чувство защищенности.
Местоположение: Швеция, Гетеборг, ул. Свена Хультинса, д. 6
Год создания проекта: 2022
Заявитель и автор проекта:
Филип Уиллард, студент архитектурного университета
Мы используем cookies
Мы используем файлы cookie для улучшения работы сайта и анализа трафика. Вы можете настроить предпочтения.
Настройки cookies
Необходимые
Всегда включено
Эти файлы cookie необходимы для работы сайта и не могут быть отключены.
Аналитические
Рекомендуется
Эти файлы cookie помогают нам анализировать работу сайта.