Голосование через Email
1
2
3
Ответьте на вопросы для голосования
Минимум 10 символов
Минимум 10 символов

Дом на берегу (Россия)


Проект:
Дом на берегу

Номинация: 
Лучший архитектурный проект, выполненный в технике ручной графики

Описание проекта, предоставленное заявителем:
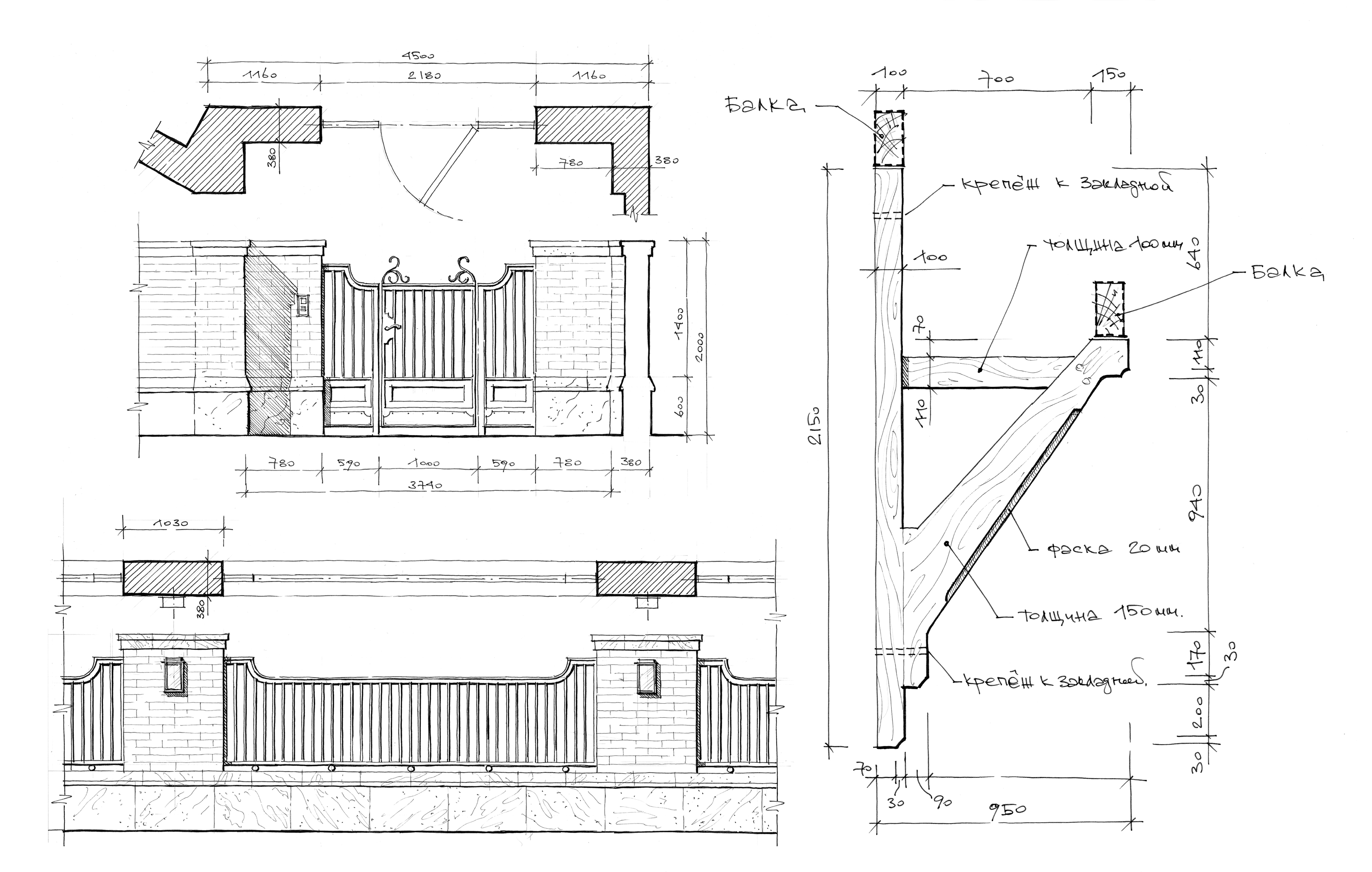
Ручная проектная графика — неотъемлемый элемент традиционной архитектуры, полноценный повседневный рабочий инструмент. Незаменимое подспорье не только в выработке концепции на первой стадии общения с заказчиком и фиксации идеи, но и при дальнейшей отрисовке узлов, фрагментов и деталей.
На конкурс представлен реализованный в Подмосковье проект частного дома. Графическое архитектурное сопровождение присутствовало, наряду с разработанной в цифре рабочей документацией, на всех стадиях создания этого объекта и позволило точнее сохранить первоначальную идею. Этот метод сочетания аналоговой ручной графики и цифровой документации отработан и отточен многими годами практической работы.

Местоположение:
Россия, Подмосковье

Год создания проекта:
2023

Дополнительные изображения или видео:
https://disk.yandex.ru/d/dSRvxoznWsErWA


Заявитель:
Каримов Тимур Гинович

Архитектор (МАРХИ, 1994 год). Частная персональная мастерская, специализируется на загородной архитектуре традиционной стилистики.

Автор проекта:
Каримов Тимур Гинович

Статус проекта:
Реализован