Голосование через Email
1
2
3
Ответьте на вопросы для голосования
Минимум 10 символов
Минимум 10 символов

"Монолит" (Россия)


Проект:
"Монолит"

Номинация: 
Лучший проект частного дома

Описание проекта, предоставленное заявителем:
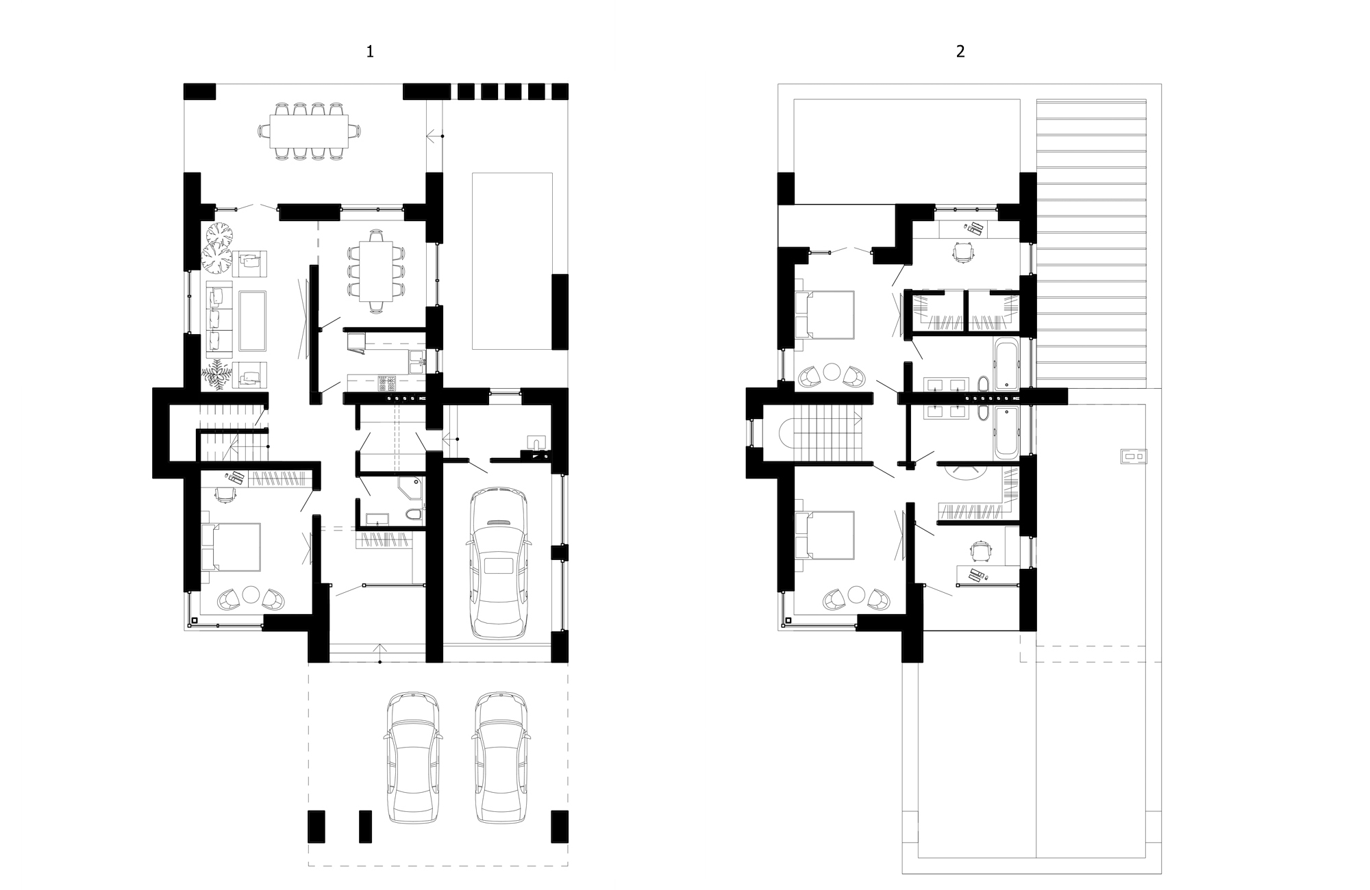
"Монолит" вдохновлен богатым природным ландшафтом донских степей. Брутальные чистые формы отражают конструктив здания, где каждая деталь наполнена функционалом и смыслом. Суровый и устойчивый, он, вместе с тем, внутренним фасадом приоткрыт красотам низовья Дона. Просторная терраса соединяется с зоной открытого бассейна - сердцем и душой дома. Эти зоны защищены конструктивом от знойного летнего солнца и спрятаны от посторонних глаз.
Первый этаж имеет общественную функцию: гостевая комната, санузел, гараж с топочной, кладовая, просторная гостиная и обеденная зона с отдельной кухней, что удобно для приходящего персонала.
Второй этаж полностью занимают две большие мастер-спальни, где у каждого члена семьи есть своя приватная зона, защищенная от посторонних. каждая со своим кабинетом, санузлом, гардеробной и балконом.
"Монолит" - это надежность и единение с природой. Бетонный фасад дома плавно перетекает в ограждение, распространяясь изнутри наружу.

Местоположение:
Россия, Ростов-на-Дону

Год создания проекта:
2025

Сайт проекта:
https://best-arch.ru/p-37-monolith

Заявители:
Бестужев Борис Евгеньевич, в 2017 окончил ААИ ЮФУ по направлению "реконструкция и реставрация архитектурного наследия". Опыт проектирования частных жилых домов более 7 лет.

Бестужева Ксения Витальевна, диплом I степени на международном смотр-конкурсе выпускных квалификационных работ по архитектуре, дизайну и искусству в г. Волгоград, 2018; шорт-лист Всероссийского конкурса студенческих проектов GRAPHISOFT BIM PROJECT, 2018; финалист Всероссийского архитектурного конкурса ArchYouth, (заочное участие, 2 место).

Авторы проекта:
Бестужев Борис Евгеньевич, Бестужева Ксения Витальевна

Статус проекта:
Проект